Projet Laurier : Lancement officiel à Montréal
Avantage Plus remporte le contrat du projet Laurier, un projet immobilier commercial stratégiquement situé à Montréal. Cette acquisition renforce notre portefeuille immobilier et notre expertise en gestion de parc immobilier commercial au Québec.

À propos du projet Laurier
Le projet Laurier représente un investissement majeur dans le secteur immobilier commercial montréalais. Ce bien immobilier commercial intègre les dernières normes de design intérieur et de gestion du parc immobilier, optimisant ainsi la valeur immobilier pour tous les stakeholders.
Notre équipe d’experts en immobilier commercial a développé des modélisations détaillées permettant une compréhension complète du potentiel locatif et du bénéfice net d’exploitation du projet.
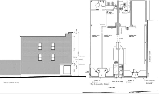
Modélisations et rendus architecturaux
Explorez ci-dessous les différentes perspectives du projet Laurier, showcasing l’agencement spatial et les solutions de design intérieur innovantes :








Lancement imminent des travaux
Le projet Laurier marque un tournant majeur dans notre gestion du parc immobilier commercial québécois. Les travaux de construction débuteront très prochainement, et nous tenons nos partenaires et investisseurs informés à chaque étape du processus.
Cette acquisition de parc immobilier reflète notre capacité à optimiser la valeur immobilier commercial tout en créant des biens immobiliers commerciaux de haute qualité dans la région de Montréal.
Expertise en immobilier commercial et design intérieur
Avantage Plus bénéficie d’une solide réputation en matière de :
- Gestion optimale du parc immobilier locatif
- Analyse du net operating income (NOI) et bénéfice net d’exploitation
- Design intérieur innovant pour biens immobiliers commerciaux
- Maximisation de la performance des actifs immobiliers
- Gestion de projets immobiliers industriels et commerciaux au Québec
Suivez l’évolution du projet Laurier et restez à l’affût des mises à jour sur notre site. Pour toute question concernant ce projet ou notre portefeuille immobilier, contactez notre équipe dès aujourd’hui.