Concept avant/après : A+ n’invente rien, mais…
Certains d’entre vous suivent la publication des »photos du jour » sur le blogue. A+ lance avec ce papier une autre façon de présenter certains de nos projets : 2 photos par article, 1 avant et 1 après. Nous n’inventons évidemment rien avec ce concept, mais nous jugeons toutefois qu’il sera intéressant pour nos lecteurs de constater les contrastes marqués par cet exercice. Nous pensons qu’il s’agira d’un aperçu plus complet que la photo du jour tout en étant plus rapide à lire que les couvertures complètes de projets que nous présentons chaque mois. Comme premier article du concept avant/après, vous vous présentons un projet de rénovation de cuisine réalisé par l’équipe A+ à l’hiver 2010. Vous pouvez remarquer sur la première photo la présence du mur de brique coupe-feu qui sera aussi exposé dans la réalisation finale des travaux de rénovation de cette cuisine. Pour le détail des matériaux utilisés, du temps requis pour la réalisation et pour l’information du budget total des travaux, nous vous invitons à lire la suite…
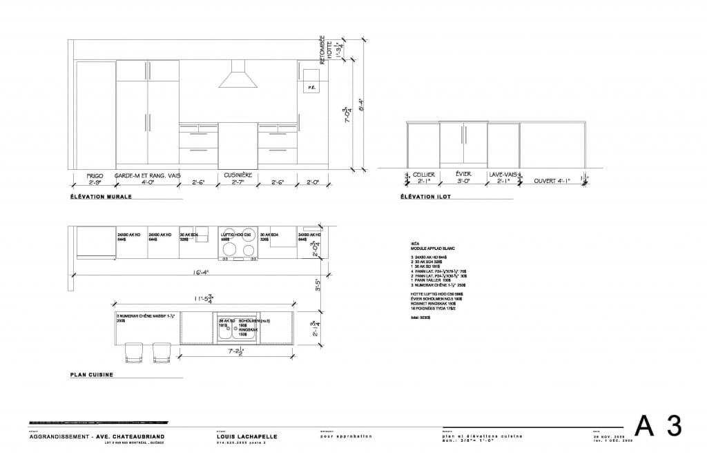
Rénovation de la cuisine / matériaux, temps requis et budget
Pour ce projet de rénovation de cuisine, les matériaux de construction ont été sélectionnés dans le but de donner au projet final un côté moderne et chaleureux. Les armoires de cuisine sont construites à partir de caissons de mélanine 5/8 » avec des panneaux de finition construits en mdf laqué de couleur blanche. Le niveau de lustre des armoires utilisées pour la construction du mobilier de cuisine fut de 20%, soit l’équivalent d’un fini satiné. Nous aurions aussi pu opter pour un fini semi-lustré (équivalent à 35%) si l’objectif avait été de maximiser la brillance des armoires. En contraste avec le blanc des armoires et tiroirs de cuisine, les comptoirs de même que l’armoire à vin située à l’extrémité droite de la cuisine ont tous deux été fabriqués en contreplaqué russe. Si l’armoire à vin a été laissée de couleur naturelle, les comptoirs ont quant à eux été teints de couleur noire et vernis avec un fini satiné. Finalement, la hotte du four installée sur le mur de brique est faite d’acier galvanisé. Elle se marie parfaitement avec le fini du four ainsi que celui du réfrigérateur (non apparent dans la photo).
Dans l’ensemble, et bien que ce projet de rénovation de cuisine a fait partie d’un projet de rénovation générale, la rénovation de cuisine se sera échelonnée sur 4 semaines. Les travaux de démolition de la cuisine à rénover et les ajustements mécaniques, électriques et de ventilation auront pris approximativement 1 semaine. Les travaux de construction et de mise en place de la charpente requise pour les travaux auront quant à eux requis 2-3 jours. La construction des planchers de bois franc s’est échelonnée sur 2 jours venant ainsi conclure la deuxième semaine de travaux. La troisième semaine aura été utilisée à la construction et à la mise en place des caissons du mobilier de cuisine ainsi qu’à la fabrication et à l’installation des comptoirs de bois. Finalement, la dernière semaine en aura été une de travaux de finition: le vernissage des comptoirs, les travaux de tirage de joint et de peinture ainsi que bon nombre d’ajustements et de correctifs requis pour livrer le projet final.
Finalement, la question qui tue! Quels ont été les coûts de ce magnifique projet? En incluant le nouveau four (1200$),un îlot central, le matériel de construction et de finition (15000$) et les coûts de la main-d’oeuvre spécialisée (12500$), le coût total de ce projet de rénovation de cuisine s’est chiffré à un peu moins de 30 000$, ce qui est en quelque sorte la norme pour des travaux de rénovation générale d’une cuisine à Montréal.




