Our Office, Our Lab
When you design spaces for others, there comes a moment when you naturally ask yourself: what kind of space do we want for the way we work together?
At A+, our office was never meant to be a showcase. We saw it instead as a place that reflects who we are: a team that believes in the power of design, the importance of coordination, and above all, the value of a work environment where people feel good.
In designing our own office, we wanted to create a space that truly reflects how we work day to day. A space that supports collaboration, makes room for different ways of focusing, and makes our expertise more tangible, both for our team and for the clients, partners, and candidates who walk through our doors.
A Project Close to Home
When our growth led us to move into a larger space, we saw it as a good opportunity to take a step back and ask ourselves what we really needed.
We wanted a place that felt more aligned with our identity, our evolution, and the way we deliver projects. A place that felt like us, without pretense, and one where our team would genuinely want to gather.
As with our client mandates, the project was approached methodically. We treated it with the same seriousness as any client project, going through the same reflections, the same trade-offs, and the same attention to detail. That approach mattered to us because it allowed us to stay consistent with what we offer every day.
A Space That Reflects Our Growth
Since 2005, A+ has evolved significantly. From a student painting business to a general contractor, from residential to commercial, and then into an integrated design firm, our path has changed over time.
Our current office is part of that same evolution.
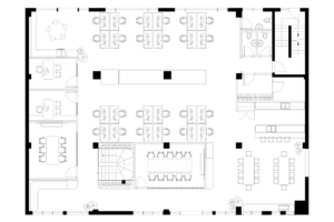
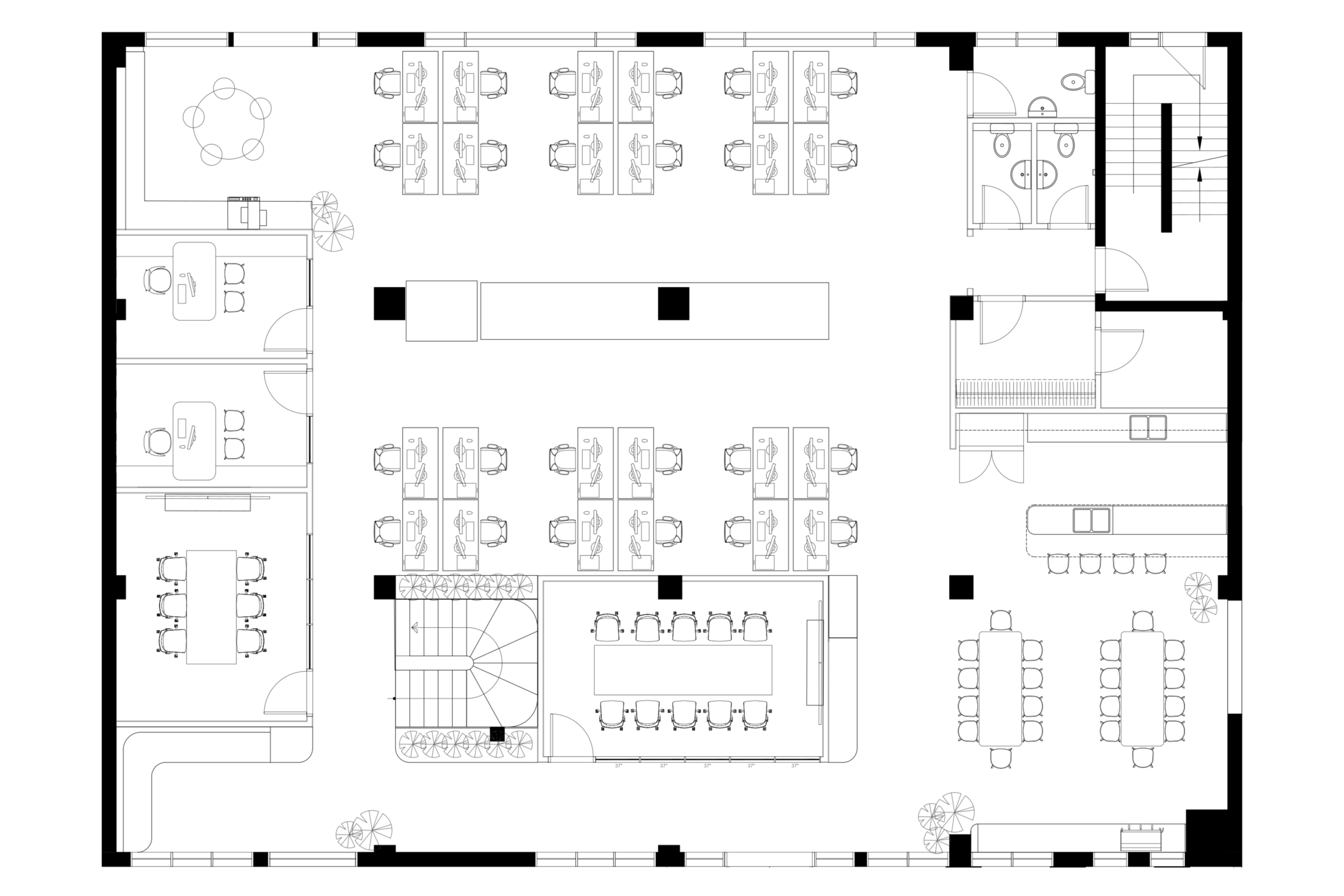
Located in the heart of Rosemont, it spans 8,000 square feet in a building we acquired to expand and refresh our work environment. Our office occupies part of the building, while seven rental units are located on the upper floor. But beyond the numbers, this new space represents an important step in our story.
It includes two meeting rooms, a large collaborative area, three informal zones, several private offices, a large kitchen, a rooftop terrace, and a gym. The whole space was designed to meet very real needs, while also creating an environment that feels welcoming and inspiring.
The white palette, wood finishes, rounded corners, central island, curved metal staircase, artwork, exposed concrete, and preserved building elements all contribute to a sense of balance between functionality, warmth, and authenticity.
Creating a Space That Makes Room for Everyone
One of the main principles that guided the design of our office is quite simple: we do not all work the same way, and no two days feel exactly the same.
Some tasks require quiet. Others are better done together. Some moments call for more structure, others for more flexibility. We wanted our space to reflect that reality, without forcing a single way of being productive.
That is why we chose to create a variety of settings. The open workspace plays a major role, but it is complemented by private offices, informal areas, and more communal spaces like the kitchen, which was designed a bit like a large dining room. The goal was not to add zones just to check boxes, but to offer people real options.
In that sense, our office is less about imposing and more about supporting.
What This Confirmed for Us About the Role of Design
Working in this space every day has made one thing even clearer to us: design influences much more than the appearance of a place.
It shapes how a space is used. It can encourage interaction, make certain behaviors feel more natural, support concentration, or simply help people feel good in a place.
In our office, this takes shape in different ways. The ability to work around the central island, on a sofa, or in a more enclosed area sends a simple message: there are several valid ways to work well. The environment is not there to rigidly control behavior, but to create the right conditions.
We have also seen that some choices have very concrete effects on team life. The absence of assigned desks, for example, encourages more spontaneous groupings. Conversations overheard in shared areas can even spark new ideas. At the same time, busier days remind us how important it is to provide quieter places for those who need them.
In other words, a well-designed space does not erase every tension of day-to-day work, but it can go a long way in helping people navigate them more comfortably.
A Project That Makes Our Work More Tangible
This office clearly speaks to design, but it also speaks to everything required to make a project truly come together.
When you see a finished space, you often notice the materials, the atmosphere, the details. What you see less often are all the decisions, coordination, and adjustments that make it possible.
In creating our own environment, we went through those very practical stages ourselves: making choices, setting priorities, aligning the vision with the realities of construction, balancing needs, and staying true to the original intent while remaining pragmatic. This is also what gives weight to our integrated approach.
For us, a successful project does not rely only on a strong design idea. It depends on the ability to connect concept, execution, technical constraints, and the actual experience of the people using the space.
A Space That Supports Team Life
What we especially appreciate about this office is that it helps bring us together.
Like many companies, we have reflected on the role of the office in a context where work habits have changed. We were not looking to require attendance, but to create a place worth coming to.
Over time, some habits have naturally taken shape. Thursdays, for example, have become more of a gathering day. It is not a strict rule, but rather a moment when collaboration and connection tend to happen more naturally.
It reminds us that an office is not only a place where tasks get done. It is also a place that can support a sense of belonging, team cohesion, and the simple pleasure of being together.
A Project That Also Resonated Beyond Our Walls
Our approach has also found an echo beyond our office. In an article about design and the workplace, our colleague Laurence Richard shares several reflections on how we approached this space, particularly around choice, flexibility, and well-being at work.
That article highlights an idea that feels important to us: rather than forcing people back to the office, it is better to create an environment where they genuinely want to come together.
What This Space Says About Us
Over time, we have come to see our office as a natural extension of the way we work.
It reflects our attention to detail, our desire to create human-centered spaces, our collaborative mindset, and our belief that a good project depends as much on the quality of the thinking as on the quality of the execution.
It also says something simple, but essential: we believe employee well-being deserves to be taken seriously. Not as a luxury or a surface-level talking point, but as a real part of performance, creativity, and satisfaction at work.
Why This Also Matters for Candidates
For people discovering A+, our office often helps them quickly understand who we are.
It does not tell the whole story, of course, but it does make several important things visible: our culture, our standards, our sense of hospitality, and the value we place on the everyday experience of work.
At a time when talent is also looking for a workplace where they can grow, contribute, and feel good, the space itself becomes a language. It does not replace the team or the work, but it does help show, in a very concrete way, what we value.
In Closing
We did not design this office to make a statement. We designed it to work better, collaborate better, and create an environment that matched what we wanted to offer our team.
Looking back, it has also helped us put words to our approach. It reminds us that a thoughtfully designed space can support much more than operations: it can encourage connection, reflect a culture, make our work more tangible, and make people want to build together.
And in the end, that may be what our own office reveals most clearly about the way we work.









